VPM 700 Cleanroom
VPM Cleanroom ist ein einzigartiges Lüftungs- und Wärmerückgewinnungsgerät mit Heiz- und Kühlfunktion, das eine neue, bahnbrechende und patentierte Technologie verwendet, die effektiv verhindert, dass die Zuluft mit der Abluft in Berührung kommt, so dass ein Austausch von Mikroorganismen, wie Bakterien, kleinste Partikel oder sonstige unreine Luft absolut verhindert wird, was bedeutet, dass es keine potenzielle Kontamination der Zuluft gibt.
VPM Cleanroom eignet sich deshalb besonders für Gewerbe, die ein hohes Maß an Hygiene erfordern, wie z.B. Labors, Operationssäle und in der Lebensmittelindustrie etc.
Die VPM Cleanroom hat einen Wärmerückgewinnungsgrad nahe 100%.
Ein hermetisch geschlossener Kältekreis und Anlieferung im betriebsbereiten Zustand, inkl. Steuerung zum einfachen Anschluss an die Stromversorgung sorgen für geringen Montageaufwand.
Geringer Platzbedarf, die Möglichkeit der Innen- und Außenaufstellung sind weitere Vorteile.
Luftmenge (siehe Planungsdaten für SEL/SFP-Werte)
Min : 5000 m3/hMax : 8900 m3/h
Keine Kontamination
VPM Cleanroom besteht aus einzelnen Kammern, die dazu beitragen, Kontamination zu verhindern. Jede Kammer verfügt über eine integrierte Kondenswanne aus Edelstahl und einen Abfluss, der das Kondenswasser ableitet. Die Aufteilung in individuellen Kammern sichert den einfachen Zugang zur Instandhaltung und Reinigung.
Beim Bau des Gerätes werden keine Schrauben oder Blindnieten verwendet, was vor Leckagen schützt. Die Steuerung sowie Frequenzkonverter befinden sich außen an der Vorderseite der Anlage, um möglichst glatte Oberflächen innerhalb des Gerätes zu bewahren. Darüber hinaus wurde eine spezielle Schließvorrichtung entwickelt, die die glatte Oberfläche des Geräteinneren nicht bricht.
Die glatten Oberflächen tragen dazu bei, ein minimales Risiko von Kontamination und Leckagen zu gewährleisten, und erleichtern die Reinigung zu.
Die Position der Ventilatoren sorgt auf der sauberen Seite für Überdruck, so dass mögliche Leckagen im Gerät von sauberer zu unreiner Luft gehen und nicht umgekehrt. Das heißt, es gibt einen Überdruck in der Zuluft und Unterdruck in der Abluft. Dies, um Kontamination zu vermeiden, so dass unerwünschte Partikel sich nicht ausbreiten, und die Arbeitsumgebungen und Sauberkeit des Labors zu gewährleisten.
VPM Cleanroom erfüllt die Anforderungen und Standards der Behörden an separaten Atemwegen für die Belüftung von Laboren und klinisch sauberen Umgebungen.
Hohe Wärmerückgewinnung
Traditionell wurden bisher Kreislaufverbundsysteme zur Wärmerückgewinnung für die Reinraumlüftung eingesetzt. Erfahrungsgemäß haben die Kreislaufverbundsysteme einen Wirkungsgrad von 40 - 50 %. Damit herkömmliche Geräte mit Kreislaufverbundsystem die Ökodesign-Richtlinien einer Wärmerückgewinnung von 63 % im Jahr 2016 und 68 % im Jahr 2018 einhalten können, werden mehrere Flüssigkeitsanschlussmodule in Serie gebaut.
Die neue bahnbrechende und patentierte VPM Cleanroom-Lösung, die effektiv verhindert, dass die Abluft mit der Zuluft in Berührung kommt, erreicht einen Wirkungsgrad von nahezu 100 %.
Platzsparende Lösung
Die patentierte Technologie von VPM Cleanroom macht die Anlage im Vergleich zu konventionellen Geräten platzsparend. Dies bedeutet, dass die Kosten für teure Quadratmeter im Vergleich zu anderen zweckähnlichen Installationen reduziert werden.
Um die geltenden Ökodesign-Richtlinien einzuhalten, würde eine Lösung mit konventionellen Geräten mehr Platz erfordern. Die europäische Gesetzgebung fordert eine Wärmerückgewinnung für 2016 von 63 % und für 2018 68 %.
Da konventionelle Geräte in der Regel eine Wärmerückgewinnung von 40 - 50% haben, ist es notwendig, mehrere Module zu bauen, um die Forderungen zu erfüllen. Bei einer konventionellen Lösung würde dies größere Geräte, größere Technikräume und höhere Baukosten bedeuten.
Die VPM Cleanroom-Lösung von Nilan bedeutet eine erhebliche Einsparung bei den Baukosten für Technikräume.
|
LeistungLeistung eines Standardgerätes als Funktion von qv og Pt, ext. Elektroeffizienz nach EN 13141-7 gilt für Standardgeräte mit ISO ePM10 >60% (M5) und ISO ePM1 50% (F7) Filtern und ohne Heizregister. Achtung! SFP-Werte werden gemessen und als Gesamtwert für beide Ventilatoren angegeben. |
![]() |
HeizleistungHeizleisung als Funktion von Ablufttemperatur von 20 °C, und Volumenstrom von 7.000 m3/h.
|
![]() |
KühlleistungKühlleistung als Funktion von Ablufttemperatur von 25 °C/50% RH, Volumenstrom von 7.000 m3/h.
|
![]() |
SchalldatenSchalldaten gelten für qV = 7.000 m3/h und Pt, ext = 250 Pa nach EN 9614-2 für Oberflächen und EN 5136 für Kanäle. Der Schallleistungspegel LWA sinkt bei abnehmender Luftmenge, bzw. abnehmendem Gegendruck. Der Schalldruckpegel LpA in einem gegebenen Abstand hängt von den akustischen Bedingungen am Installationsort ab. |
![]() |
Anschlüsse: |
Die CTS602i-Steuerung ist eine umfassende und einfach zu bedienende Steuerung mit vielen Optionen. Die Steuerung wird ab Werk mit einer Grundeinstellung geliefert, die den individuellen Wünschen und Anforderungen angepasst werden kann, um ein optimales Raumklima und höchste Energieeffizienz zu erreichen. Das HMI Touch Panel bietet einen guten Überblick über den aktuellen Betrieb des Gerätes und verfügt über eine Menüstruktur, in der sowohl Benutzer als auch Installateur einfach navigieren können. Externe Kommunikation
Weitere Informationen über alle Funktionen finden Sie in der Software- und Montageanleitung des Gerätes.
|
Nilan CTS 6000 ermöglicht es, Nilan Gewerbegeräte online über einen Computer zu steuern und zu überwachen, egal wo auf der Welt Sie sich im Verhältnis zum Gerät befinden. Mit einem Wochen- oder Jahresprogramm kann der automatische Betrieb unter anderem in Bezug auf Betriebszeiten, Raumtemperaturen, Lüftungsgeschwindigkeiten und Alarmmeldungen und vieles mehr eingestellt werden. Der CTS 6000 gewährleistet eine optimale Überwachung der Betriebsart des Gerätes, wobei alle Arten von Störungen, Alarmmeldungen und Instandhaltungsinformationen automatisch per E-Mail den richtigen Personen gemeldet werden. Dies ermöglicht bei Betriebsstörungen ein schnelles Handeln und gewährleistet zugleich eine optimale Instandhaltung und Planung von Servicebesuchen. Funktionen Vorteile Add-on |
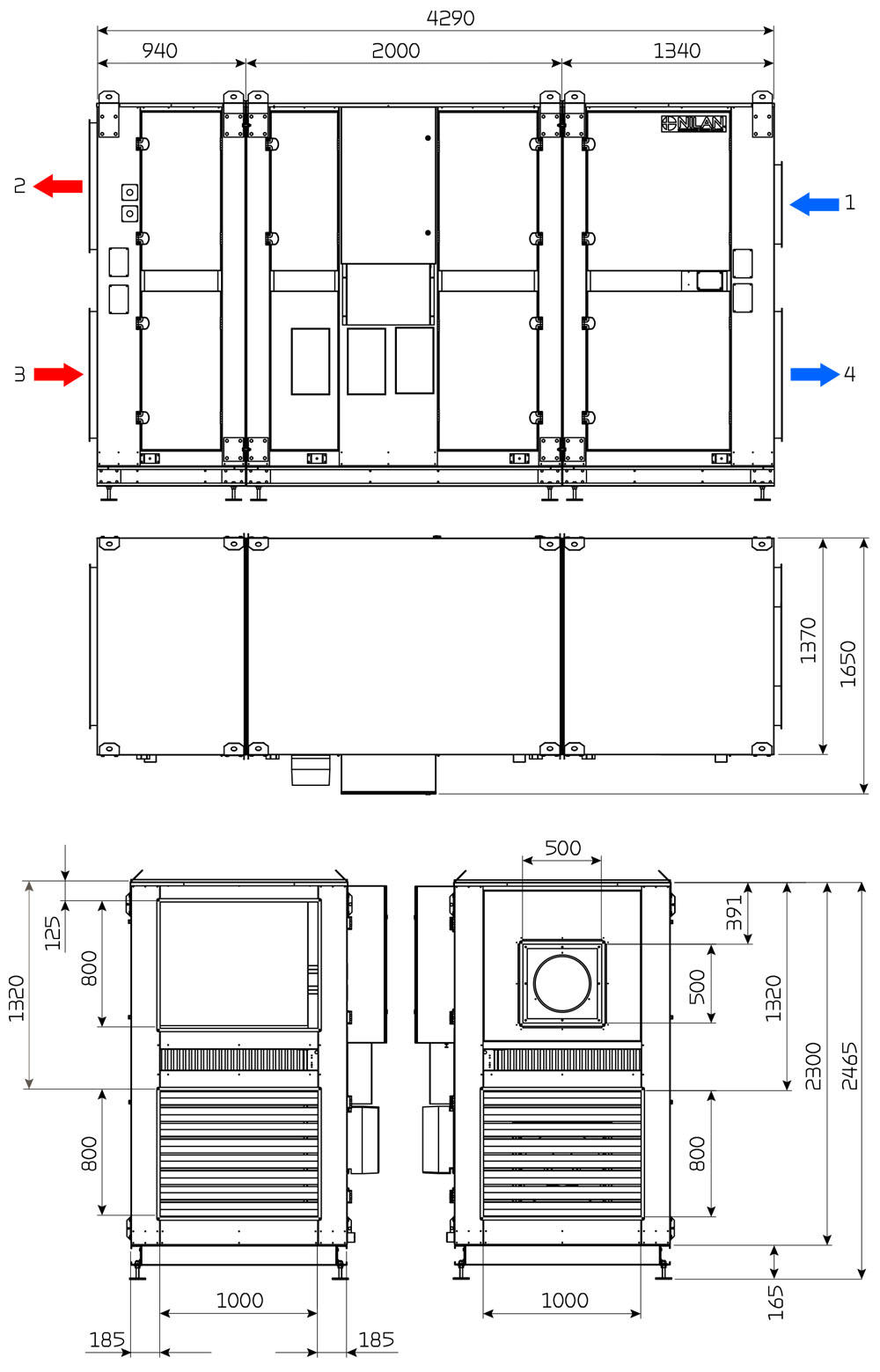
Bei der Einrichtung des Geräts sollten zukünftige Wartungs- und Servicearbeiten immer berücksichtigt werden. Es muss einfach sein, Filter zu wechseln, und es muss möglich sein, Ventilatoren und andere Komponenten auszutauschen. Da muss Platz vorhanden sein, um das Gerät reinigen zu können. Bei der Reinigung kann Wasser aus den Kondensatabläufen auslaufen. Am Kondensatablauf muss daher Platz für Wasseranschlüsse vorhanden sein ACHTUNG! Es ist wichtig, dass das Gerät waagerecht aufgestellt ist, um einen ordnungsgemäßen Abfluss aus der Kondensatwanne zu gewährleisten.
ACHTUNG! Empfohlener Serviceabstand: 1425 mm |






