VR 360
Das VR 360 ist ein Lüftungsgerät, das für die zentrale Belüftung entwickelt wurde. Das Gerät ist mit einem Rotationswärmetauscher ausgestattet, der eine stabile passive Wärmerückgewinnung mit hohem Wirkungsgrad gewährleistet und ganzjährig zu einem angenehmen Raumklima beiträgt. Die Serie bietet außerdem die Möglichkeit der natürlichen Kühlung (Free Cooling), sodass Komfort und Energieeffizienz im täglichen Betrieb berücksichtigt werden.
Das VR 360 eignet sich zur Installation in Schulen, Büros, Besprechungsräumen und anderen gewerblichen Bereichen, in denen Komfort, Energieeffizienz und Betriebssicherheit gefordert sind.
Die Konstruktion der VR-Serie mit selbsttragendem Rahmen und 50 mm Isolierung sorgt für ein robustes und kompaktes Gerät, das sich problemlos in Technikräumen mit begrenztem Platzangebot aufstellen lässt. Flexible Stutzenpositionen und universelle Anschluss-möglichkeiten erleichtern die Anpassung der Installation an das Gebäude.
Das VR 360 ist mit Fokus auf eine einfache Installation und einen unkomplizierten Zugang für den Service konzipiert.
Luftmenge (siehe Planungsdaten für SEL/SFP-Werte)
Min : 0 m3/hMax : 4150 m3/h
Heizungdaten - Kondensationstauscher
|
Leistung (Kondensationstauscher)Die folgenden Daten werden auf Basis eines Kondensationstauschers berechnet. Leistung eines Standardgerätes als Funktion von qv og Pt, ext. Elektroeffizienz nach EN 13053 gilt für Standardgeräte mit ISO ePM10 >60% (M5) und ISO ePM1 50% (F7) Filtern und ohne Heizregister. * Die Luftgeschwindigkeit über der Verdampferoberfläche wird bei Meter pro Sekunde gemessen. Achtung! SFP-Werte werden gemessen und als Gesamtwert für beide Ventilatoren angegeben. |
![]() |
TemperaturwirkungsgradTemperturwirkungsgrad für Rotierende Wärmetauscher gemäß EN308 (Trocken). |
![]() |
SchalldatenSchalldaten gelten für qV = 3600 m3/h und Pt, ext = 250 Pa nach EN 9614-2 für Oberflächen und EN 5136 für Kanäle. |
![]() |
|
|
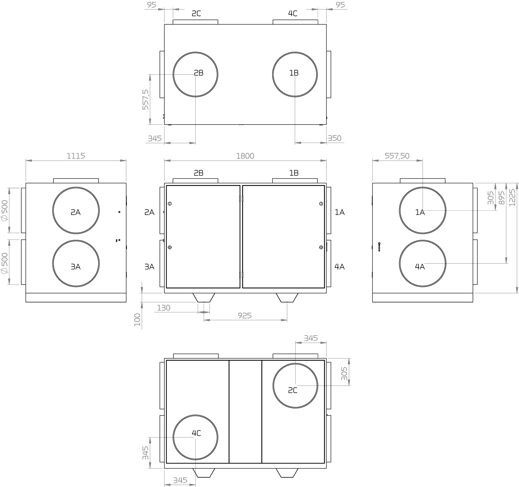
Maßskizze VR 360 (zuluft links):
Alle Angaben verstehen sich in mm. 1. Außenluft A. Giebelplatzierung
Alle Angaben verstehen sich in mm. 1. Außenluft A. Giebelplatzierung |
CTS602i ist eine fortschrittliche Regelung für gewerbliche Lüftungsanlagen mit umfangreichen Einstellmöglichkeiten. Die Regelung wird werkseitig mit einer Grundkonfiguration geliefert, die einfach an die jeweiligen betrieblichen Anforderungen und Wünsche angepasst werden kann. Dies gewährleistet einen stabilen und effizienten Betrieb sowie eine optimale Nutzung des Geräts. Das HMI-Touchpanel bietet einen klaren Überblick über den aktuellen Betriebszustand des Geräts und verfügt über eine intuitive Menüstruktur, die sowohl für Nutzer als auch für Installateure leicht zu bedienen ist. Externe Kommunikation
Weitere Informationen über alle Funktionen finden Sie in der Software- und Montageanleitung des Gerätes.
|
.jpg)




