VPM 120 M2
Das VPM 120 M2 ist ein Lüftungsgerät mit Wärmerückgewinnung über eine reversible Wärmepumpe, die sowohl zur Kühlung als auch zur Erwärmung der Zuluft eingesetzt werden kann. Ein integriertes Heatpipe-System unterstützt die Wärmerückgewinnung und erhöht die Effizienz des Geräts – was zu einem guten COP beiträgt.
Das VPM 120 M2 wird zur Belüftung von Gebäuden eingesetzt, in denen hohe Anforderungen an die Luftqualität bestehen – beispielsweise in Räumen mit belasteter oder feuchter Luft, die über das zentrale Lüftungssystem separat belüftet werden. Typische Einsatzbereiche sind Großküchen, Sanitärbereiche und Umkleideräume. Abluft und Zuluft sind vollständig voneinander getrennt, wodurch ein Partikelübertrag verhindert wird.
Dank der integrierten Wärmepumpe ist das VPM 120 M2 eine kompakte Lösung, die den Platzbedarf im Gebäude minimiert. Gleichzeitig entfällt die Notwendigkeit eines externen Kälteaggregats, das andernfalls auf dem Dach oder am Boden installiert werden müsste.
Luftmenge (siehe Planungsdaten für SEL/SFP-Werte)
Min : 400 m3/hMax : 1950 m3/h
Motor und Motorsteuerung
|
LeistungLeistung eines Standardgerätes als Funktion von qv og Pt, ext. Elektroeffizienz nach EN 13053 gilt für Standardgeräte mit ISO ePM10 >60% (M5) und ISO ePM1 50% (F7) Filtern und ohne Heizregister. * Die Luftgeschwindigkeit über der Verdampferoberfläche wird bei Meter pro Sekunde gemessen. Achtung! SFP-Werte werden gemessen und als Gesamtwert für beide Ventilatoren angegeben. |
![]() |
COP Luft/Luft (Heizung)Leistungszahl COP [-] Zuluft als Funktion der Außentemperatur [°C] und Volumenstrom qv [m3/h] Gemäß EN14511, Abluft = 21°C |
![]() |
HeizleistungHeizleisung als Funktion von Ablufttemperatur von 20 °C, und Volumenstrom von 1200 m3/h.
|
![]() |
KühlleistungKühlleistung als Funktion von Ablufttemperatur von 25 °C/50% RH, Volumenstrom von 1200 m3/h.
|
![]() |
SchalldatenSchalldaten gelten für qV = 1200 m3/h und Pt, ext = 250 Pa nach EN 9614-2 für Oberflächen und EN 5136 für Kanäle. Der Schallleistungspegel LWA sinkt bei abnehmender Luftmenge, bzw. abnehmendem Gegendruck. Der Schalldruckpegel LpA in einem gegebenen Abstand hängt von den akustischen Bedingungen am Installationsort ab. |
![]() |
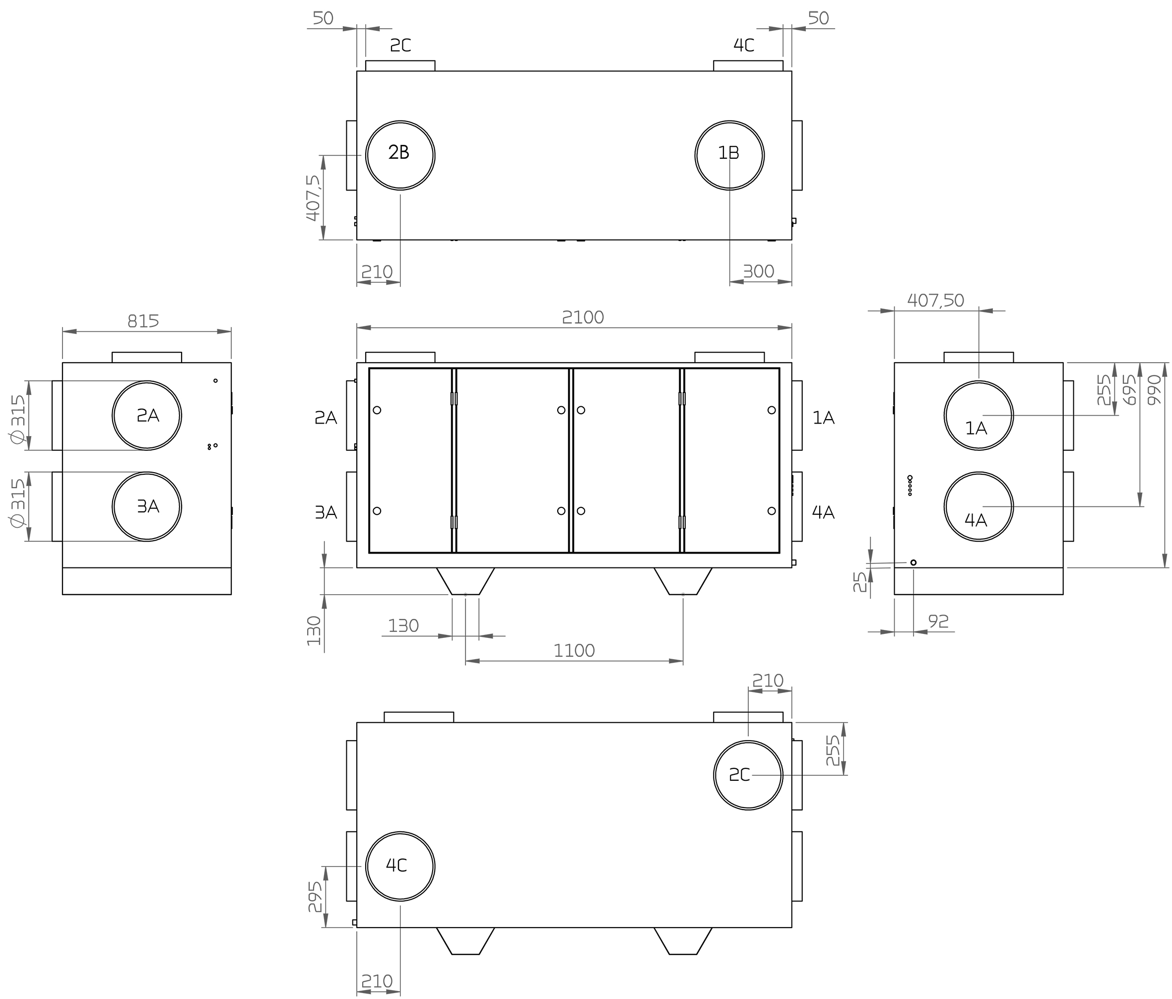
Maßskizze VPM 120 M2 (links):
Alle Maßangaben in mm. 1. Außenluft A. Giebelplatzierung
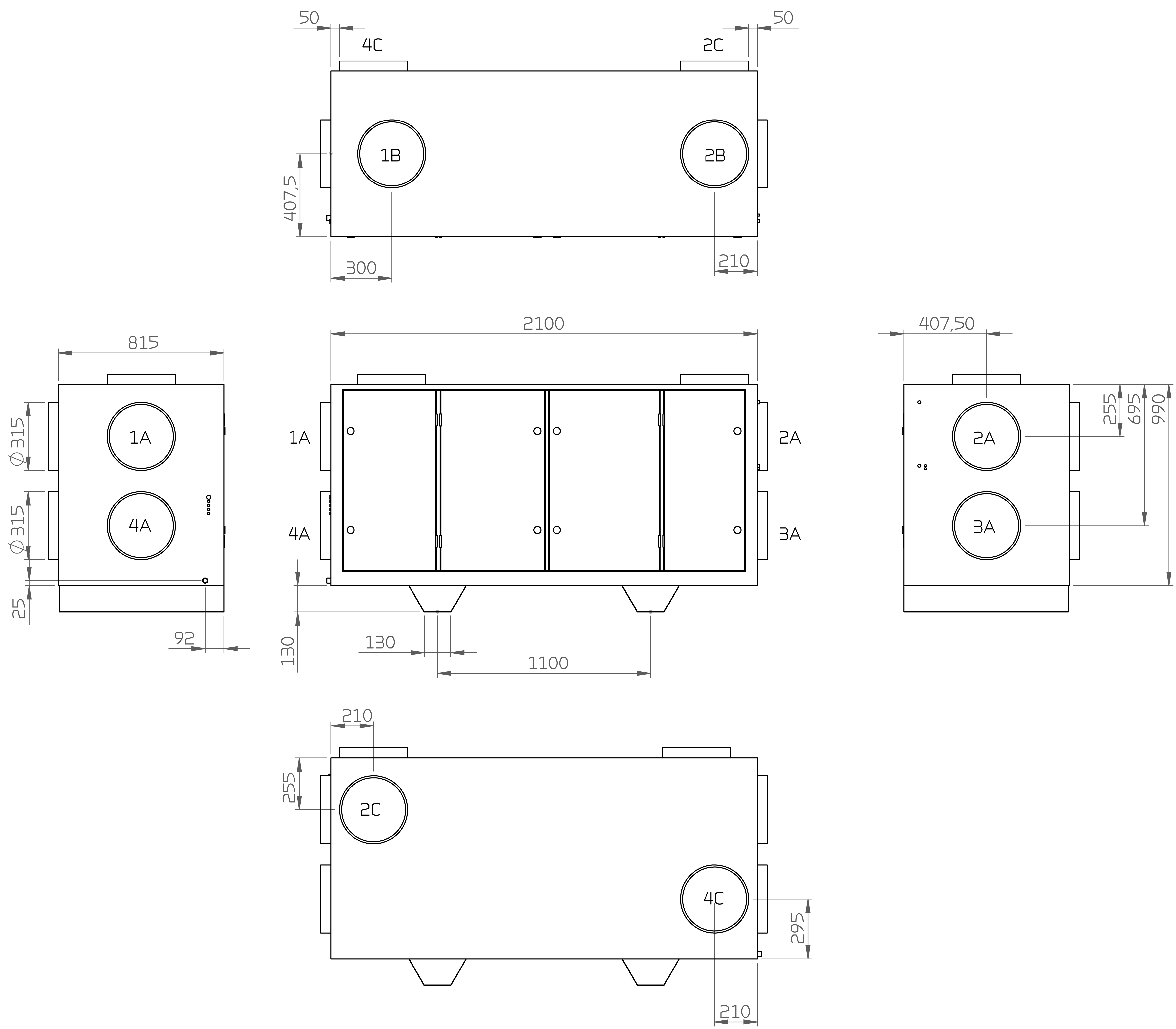
Maßskizze VPM 120 M2 (rechts):
Alle Maßangaben in mm. 1. Außenluft A. Giebelplatzierung |
Die CTS602i-Steuerung ist eine umfassende und einfach zu bedienende Steuerung mit vielen Optionen. Die Steuerung wird ab Werk mit einer Grundeinstellung geliefert, die den individuellen Wünschen und Anforderungen angepasst werden kann, um ein optimales Raumklima und höchste Energieeffizienz zu erreichen. Das HMI Touch Panel bietet einen guten Überblick über den aktuellen Betrieb des Gerätes und verfügt über eine Menüstruktur, in der sowohl Benutzer als auch Installateur einfach navigieren können. Externe Kommunikation
Weitere Informationen über alle Funktionen finden Sie in der Software- und Montageanleitung des Gerätes.
|
ACHTUNG! Es wird ein guter Abstand vor dem Gerät empfohlen. Bei der Aufstellung des Geräts ist ausreichend Platz für spätere Wartungs- und Reparaturarbeiten vorzusehen. Der Filterwechsel muss einfach sein und der Austausch von Ventilatoren oder anderen Bauteilen müssen möglich sein. Es muss Platz für eine einfache Reinigung des Geräts vorhanden sein. Bei der Reinigung des Geräts kann Wasser aus dem Reinigungs- und Kondenswasserablauf austreten. Daher muss Platz für die Montage von Siphons an Kondensatabläufen vorhanden sein sowie Absperrhähne an Reinigungsabläufen.
ACHTUNG! Das Gerät ist geräusch- und vibrationsarm, wobei dennoch eventuelle Vibrationen berücksichtigt werden müssen, die sich auf Gebäudeteile übertragen können. Um Gerät und Unterlage zu trennen, empfiehlt es sich, Schwingungsdämpfer unter dem Gerät zu montieren. Wir empfehlen ein Abstand von ca. 10 mm zu anderen Gebäudeteilen und festem Inventar eingehalten werden. Kondensatablauf anschließenAnschluss der Nilan-Siphon mit Kugel unten am Gerät / Abluft-Seite / Abluft Seite.
|









